/20
Yibei Dong
Rabbit Hole

Dissertation title
Ramp

The project is described through the eyes of Alice, a lady who lives in an aprtment in Brandon Mews, Barbican. One day, she found a mysterious hole in the ceiling of the apartment. After she entered the hole, she found herself in the interior plantation of Brandon Mews in 2030.

In 2030, city residents without gardens have repurposed redundant interiors into community greenhouses and plantations. These rooms for growing are founded on the principals of community ecology where both plants and people flourish. The benefits of nurturing plants in a local setting for a plant-prioritised diet evolved from carbon heavy systems of old after the real cost of food miles, mono-farming and animal-prioritised diets became evident. The neural rewards of seeing and hearing growth, the harvest, the nutrition of the produce itself, the human bonds developed from “growing together” are now considered a metric in the wellbeing policy framework.

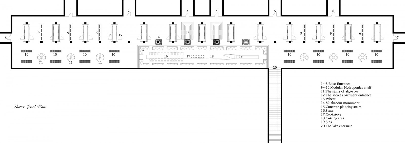
This example can be found in what was a redundant and forgotten space between 2 rooves above Brandon Mews. Originally there was a wigwam and flat roof. Unfortunately, it leaked and the Estate decided that instead of fixing the roof, a new transparent roof would be erected a whole storey above the old roof. Hence a liminal space was created… and then not used. The Estate applied for a social enterprise grant under the Wellbeing Initiative to adapt the space into a community plantation where the residents of Brandon Mews, Estate dwellers and neighbors can meet and cultivate plants and relationships

It has been provided with water and planting systems to provide a range of cultivation methods for the growth of edibles, kitchen and eating areas to enjoy the harvests together, algae bars for instant nutrition, adaptable planting modules for market pitches and listening stations where you can hear the plants talking.

Keywords